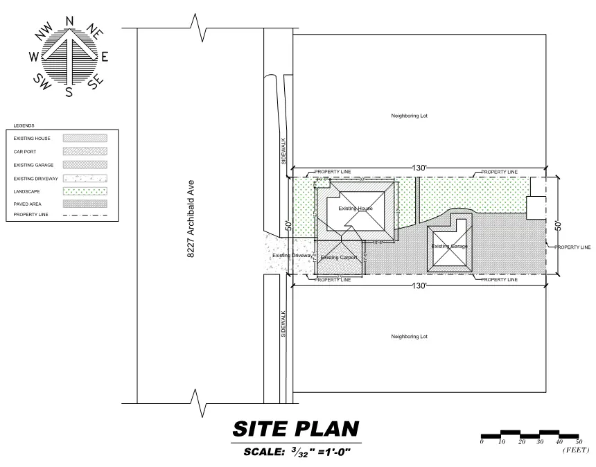
Site Plans
Are you having difficulty getting a permit from your local building department?
Gain a Comprehensive Understanding of Your Project Site
At Voguish Designs, we understand that a clear and detailed site plan is essential for any construction project. Whether you’re building a new house, making changes to an existing property, or adding new structures like a pool, garage, or barn, our meticulously crafted and scaled site plans are designed to help you meet local permit requirements and ensure the success of your project.
Get in Touch
Whether you’re an architect, designer, builder, or homeowner, we would love to hear from you! Contact us today to learn more about our services and discover how Voguish Designs can help you bring your vision to life with precision and accuracy.
Our Specializations

Scaled Site Plans
Our site plans are meticulously drawn to scale, providing an accurate representation of your project site and its surroundings. Whether you're planning a new construction project or making changes to an existing property, our scaled site plans give you valuable insights into site conditions, access points, and spatial relationships.

Permit Compliance
Many local building departments require a scaled site plan as part of the permit application process for new construction, renovations, or additions. Our site plans are designed to meet local permit requirements, helping you obtain the necessary permits for your project quickly and efficiently.

No Stamp Required
If your building department does not require a Surveyor, Engineer, or Architect Stamp, our plans are just what you need! This is not a Legal Survey, nor is it intended to be or replace a Legal Survey. We draw your plan so you don't have to.
Why Choose Us
Expertise
With years of experience in the industry, we have the expertise and knowledge to deliver meticulously crafted and scaled site plans that exceed expectations.
Attention to Detail
We understand that every detail matters. That’s why we take a meticulous approach to our work, ensuring that every aspect of your site plan is accurately depicted and beautifully presented.
Permit Success
We understand the permit process and local building codes, ensuring that our site plans meet all necessary requirements and help you obtain the permits you need for your project quickly and efficiently.
Customization
We work closely with you to understand your unique project requirements, delivering site plans that meet your specific needs and objectives.
Locations
Whether you are looking for permits in any city, county, or state of the United States, Canada, or Australia, our site plan services have you covered. We are familiar with permit requirements and building codes across various jurisdictions, ensuring that our site plans meet all necessary requirements, regardless of your project location.
Ready to Get Your Project Started?
Contact us today to learn more about our meticulously crafted and scaled site plan services and discover how Voguish Designs can help you obtain the necessary permits for your project quickly and efficiently.

















